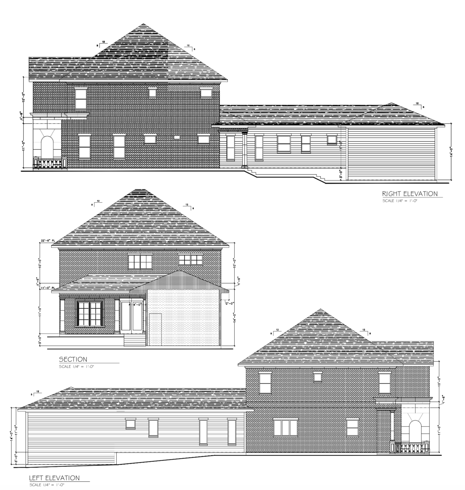
This home will feature a painted brick exterior with decorative custom cast stone. There are four bedrooms and three and a two-half bathrooms including a jack and Jill. The two car garage has an alley entrance.
Gallery
Spend quality away time with family.
Ut sed tortor egestas, volutpat orci vel, volutpat dolor.